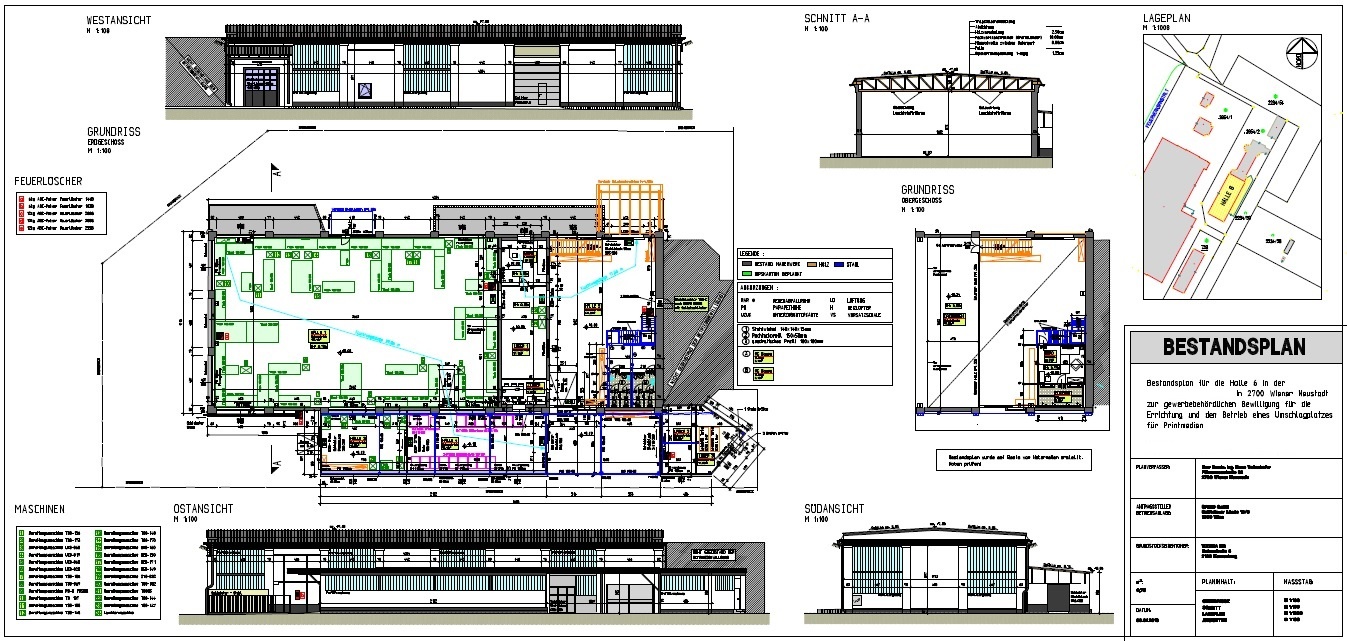
Bestandsumbau in 2700 Wiener Neustadt


Leistungen: Bauführer


Bauführung für die PADELZONE GmbH für den Ausbau einer Bestandshalle mit 7 Paddel Courts und 2 Sanitärcontainer



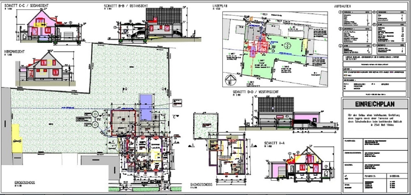
Zubau in 7223 Sieggraben



Leistungen: Einreichplanung und Bestandsplanung inkl. Baubeschreibung


Für einen zweigeschoßigen Zubau in Massivbauweise zu einem bestehenden Dreikanthof.



Bestandsumbau in 2751 Steinabrückl

Leistungen: statische Vorbemessung und Detailangaben für die ausführende Baufirma (Partnerreferenz)

Bei diesem Bestandsumbau wurden mehrere einzelne Räume zu einem hellen lichtdurchfluteten Wohn- und Essbereich umgebaut. Die Auswechselung der Durchbrüche erfolgte mit Stahlträgern vom Typ HEB 160. Als zentrales lastableitendes Bauelement wurde durch die Baufirma eine Stahlbetonstütze mit den Abmessungen von 35/100 cm errichtet. Die Ableitung der Stützenlast erfolgte über ein neu hergestelltes Einzelfundament.